Disponibile un posto nell’appartamento Da Vinci
Piazza L. Da Vinci, 2 - 38122 - Trento
Appartamento caricato da walter.beozzo
Camera condivisa: 2
Camera singola: 1
Bagno: 1
Cucina: 1
Balcone: 2
L’appartamento si trova al terzo piano di un condominio con dieci unità abitative in parte affittate a studenti universitari. L’immobile è collocato in una posizione strategica sia per l’uso dei mezzi di trasporto pubblico (bus urbani, extraurbani e treni) sia per la vicinanza alle principali facoltà dell’Università di Trento. Supermercati e vari altri servizi urbani sono praticamente sotto casa.
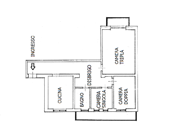
L’appartamento è composto di cucina con tavolo e giro-panca fornita del necessario per cucinare e un bagno accogliente da poco ristrutturato con doccia e armadietto per riporre i propri cosmetici. La stanza singola è l’unica priva di balcone ma efficacemente arredata con letto, comodino, armadio a due ante, scrivania con mensole e cassettiera. Anche la stanza tripla esposta ad est con una bellissima vista su Torre Vanga è arredata come la singola per ogni posto letto. La stanza doppia invece presenta una scrivania e un armadio a tre ante ma può usufruire di un ulteriore armadio riposto all’ingresso della stanza.
Regole della casa
L’appartamento è stato concepito per l’affitto a studentesse universitarie con l’esigenza di frequentare i corsi con il minor dispendio di tempo ed energie. Ogni camera è dotata
di scrivania e cassettiera per permettere di studiare comodamente a casa ma per chi preferisce la compagnia dell’ambiente universitario le biblioteche principali della Città e dell’Università non sono lontane.
L’appartamento è già occupato da alcune ragazze che illustreranno le regole della casa in merito alla convivenza (turni di pulizia, fumo, animali, ecc.) Non sono permesse feste
poiché negli anni scorsi hanno suscitato le proteste degli altri condomini.
Planimetria

Contatta il locatore
Camere
Appartamento
Stato: Occupata
Libera da: 31/03/2025
1250 €
Stanza condivisa
Stato: Occupata
Libera da: 31/03/2025
190 €
Stanza condivisa
Stato: Occupata
Libera da: 31/03/2025
190 €
Altre informazioni
Spese extra:
60€ mensili a testa
Le spese extra comprendono:
Acqua, luce, gas, tassa rifiuti e spese condominiali
Cauzione:
380
Tipo contratto:
4+4
Permanenza minima:
1 anno
Comfort disponibili
Essenziali
Appartamento arredato
Wifi
Doccia
Lavatrice
Televisione
Aria condizionata
Riscaldamento
Struttura
Balcone
Giardino
Ingresso privato
Accesso ai disabili
Garage
Parcheggio gratuito
Parcheggio a pagamento
Posto bici custodito
Ascensore
Cantina
Cucina
Cucina attrezzata
Macchina del caffè
Forno
Cucina a gas
Cucina elettrica
Cucina a induzione
Lavastoviglie
Microonde
Vicinanze
Fermate nelle vicinanze
Ateneo nelle vicinanze
Biblioteca nelle vicinanze